日期:2026年03月13日

ART 01
展会概况
第五十七届中国(广州)国际家具博览会将于广交会展馆B区隆重举办。
展会的设计理念:西形东韵,传统山水意境 ,经过设计师的现代手法演绎空间成为文化的载体 ,传递品牌深厚的文化底蕴。将传统山水升维为空间哲学——造一座“心山”,引一渠“意水”,让每一件校具,成为涵养心境、启迪智慧的容器。

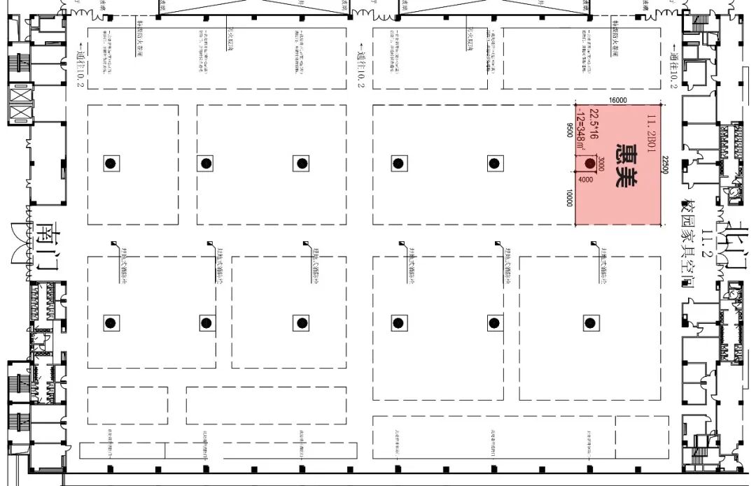
3月28-31日,广交会展馆B区【S11.2B01】展位,浙江惠美将精彩亮相,邀您共同见证!

PART 02
惠美简介
中国惠美创办于改革开放初期的 1987 年,生产基地位于美丽的中国温泉之乡-浙江武义。经过 30 多年的栉风沐雨,惠美已由三五人的校具作坊发展成为中国教育家具头部企业。公司厂区总建筑面积十多万平方米,员工超过 500 人,年产值超 5 亿元。现下属品牌战略发展中心(深圳)、设计研发中心(杭州)、两个全球创意中心(米兰、台北)、四个全国营销中心(北京、上海、杭州、南京)、三个城市运营中心(深圳、东莞、温州),主要致力于教育家具、公寓家具、办公家具、学校专用门窗的制造与销售。
推荐文章